Mini rekuperatorius MITSUBISHI ELECTRIC VL-100EU5-E, valdymas jungikliu
- Prekės kodas: Mini rekuperatorius MITSUBISHI ELECTRIC VL-100EU5-E, valdymas jungikliu
- Mitsubishi Electric mini rekuperatorius užtikrina nuolatinį šviežio oro tiekimą ir ištraukimą.
- Padeda mažinti šildymo bei vėsinimo išlaidas, didindamas energinį efektyvumą.
- Veikia itin tyliai dėl pažangios triukšmo izoliacijos.
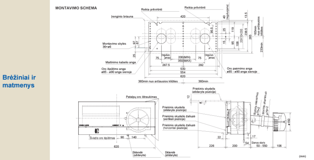
- Montavimas paprastas: tereikia išgręžti dvi skyles sienoje.
- Stilingas dizainas lengvai dera įvairiuose interjeruose.
Pagrindiniai parametrai:
- Gamintojas: Mitsubishi Electric
Kaina
611,25 €
Radote pigiau?
Pateikite pigesnės įrenginio kainos nuorodą adresu prekyba@airway.lt arba skambinkite telefonu +370 622 94999 ir mes pasiūlysime dar geriau!



